首页 行业资讯

三种常见的智能停车场系统安装形式

2021-07-26 14:50:13 

今天德亚小编来和大家说说关于智能停车场系统安装的三种常见形式,具体如下:

一、智能停车场安全岛式安装方式

即:道路大于7米,安全岛放置在道路中间,进出口设备分开安装,先进行安装摄像机接着安装道闸,道闸与像机间隔30cm。

注:
1、像机安装完成后不能超出安全岛边缘;

2、道闸机箱边缘与案例边缘相距5cm。

3、道闸杆正下方不能有金属物体(如:窨井盖、导轨、线管经过等)。

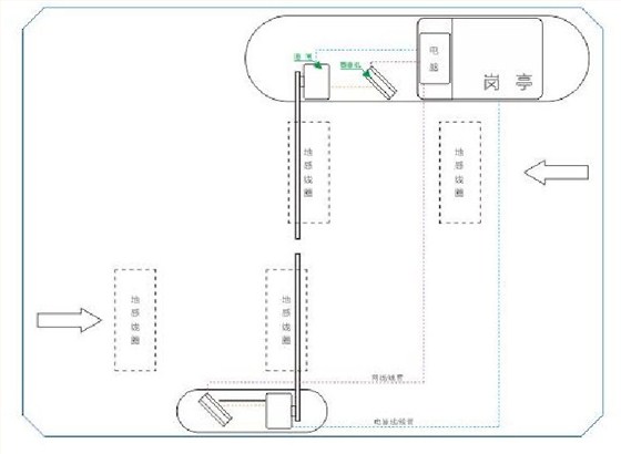
二、智能停车场车牌识别系统单通道安装方式

即:道路小于6米且大于3米,由单道闸管理,进出设备安装在道路一侧或两侧,道闸与像机间隔30cm。固定设备的安全岛可以浇筑也可以不浇筑,根据情况而定,固定好设备即可。

注:
1、像机安装完成后不得超出安全岛边缘;

2、道闸杆正下方不能有金属物体(如:窨井盖、导轨、线管经过等)

智能停车场系统安装如下图所示:

车牌识别布局布线图 单通道式

三、智能停车场道闸对开式安装方式

即:道路大于6米,由双道闸管理,两个道闸杆必须在同一水平线上,进出设备安装在道路两侧,道闸与像机间隔30cm。

注:

1、像机安装完成后不能超出安全岛边缘;

2、道闸机箱边缘与案例边缘相距5cm。

3、道闸杆正下方不能有金属物体(如:窨井盖、导轨、线管经过等)

智能停车场系统安装如下图所示:

车牌识别布局布线图 道闸对开式